2043 Random Road - Condo#08
$1,250 / Month - Available June 1st
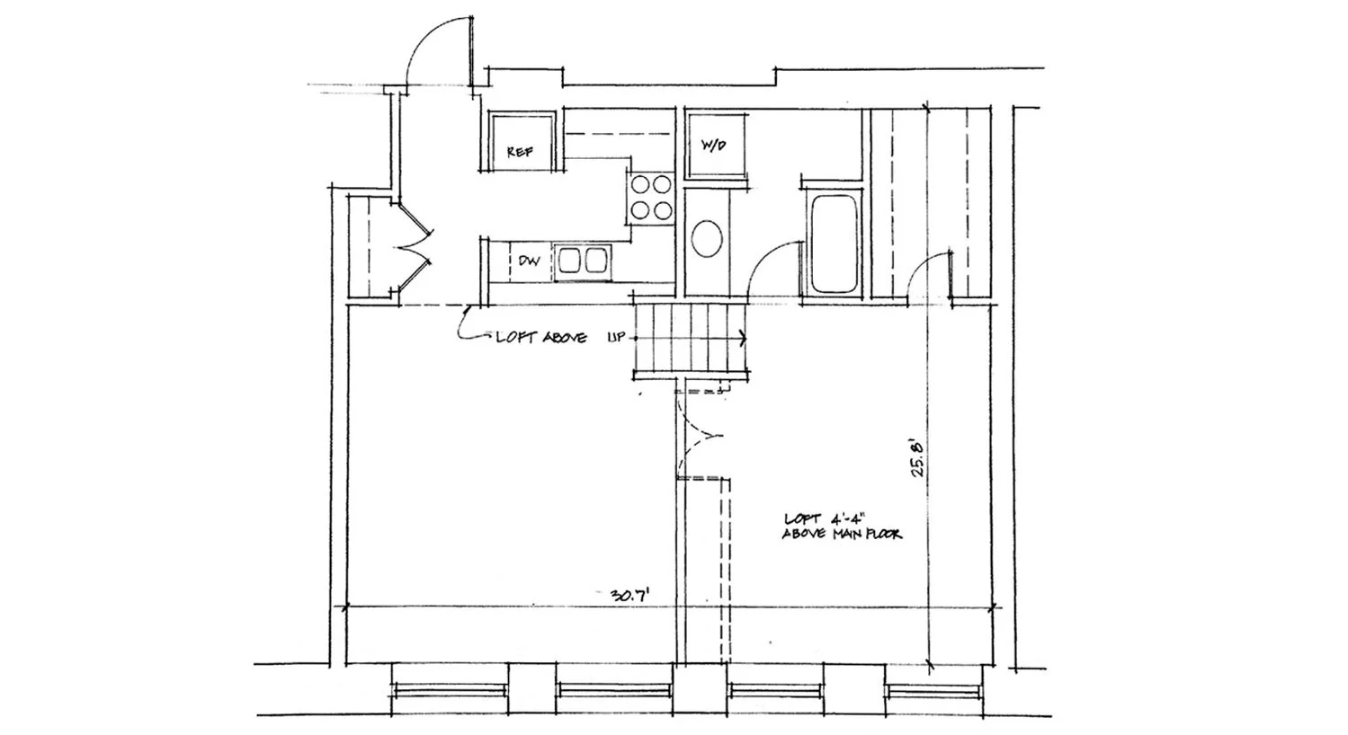
one bedroom, loft style, 792 s.f.
Condo #08 is available for lease for $1,250 per month, including utilities except electric. This 782 sq. ft. condo is on the ground floor facing Murray Hill Road.
Stacked washer and dryer in tiled bathroom
One parking space in outdoor gated lot is included
Locally controlled heat
Full kitchen with dishwasher and garbage disposal
Large windows with mini-blinds
Loft area above kitchen with wheeled ladder
Ceiling fans
Large storage area under bedroom
If you are interested in seeing the condo please email Scott via the contact link.
Floor plan of Condo #08
