2043 Random road - Condo #309
$2,400 / month
three Bedroom, 1,850 sq. ft. Available January 1st
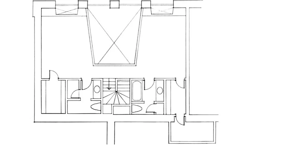
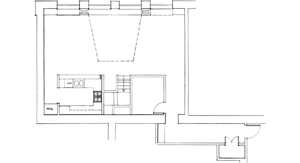
Unique two-story condominium is for sale on the third floor of the historic Murray Hill School built in 1916. Large and airy, this three bedroom and two and a half bath has great northwest views across Random Road to Tony Brush Park. The two-story living space with the massive double-hung windows allows light to flood into the rest of the condo. Original maple hardwood on the first floor recalls it's classroom heritage. The third bedroom on the first floor could be an excellent study.
Modern. clean, aesthetic of condo interior contrasts beautifully with the historic brick exterior. Solid masonry walls and floors ensure quiet tranquility in the heart of one of Cleveland's most walkable neighborhoods. A historic elevator speeds you to the third floor (however it is not handicap accessible because the building was originally designed with steps to the elevator). The Red line train of the RTA with a direct connection to Cleveland Hopkins Airport is just 800 feet from the front door.
Condominium #309 lease includes one assigned outdoor parking space in a gated parking lot, and all utilities except electric, internet/cable.
3 bedroom, 2.5 baths
Forced air with central A/C
Dishwasher and garbage disposal.
Small guest powder room on first floor off main hall
Full Bathroom 1 includes stacked washer and dryer
Full Bathroom 2 includes large linen closet.
Shared roof deck with views of downtown.
Condo #309 Second Floor
Condo #309 First Floor
